BASIE
あたりまえを、きちんと叶えた住まい。
大切なものを一緒に背負ってくれる「強さ」
□構造計算 □耐震+制振 □耐震等級3
地震に強いこと
家を建てた後、強度は簡単には変えられません。
だから建てる時に十分な強さで、高い品質で建てる。
ベイシーは地震に強い「テクノストラクチャー工法」の家。
高い耐震性を実現する強い部材「テクノビーム」
緻密に強度を確認する「構造計算」
地震の揺れを抑制する制振部材「テクノダンパー」
強い家であるためのこだわりを注ぎ込んだ家です。
何気ない一瞬を、最高に幸せにする快適さ
□断熱 □換気
快適に過ごせること
お気に入りのインテリアや、充実した設備は心を前向きに
暮らしを楽しくしてくれます。
でも、快適であるためにはそれだけでは少し足りません。
ベイシーは快適さのポイントである
断熱性と空気の質を重視。
長く住む家としてふさわし「断熱性」
計画的な換気と高い気密性で実現する「空気質」。
私たちは壁の中からそっと「快適」を実現します。
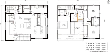
Plan.1 家はあえてコンパクトに
モノに縛られず、自由に効率的に暮らす
キッチンを基点に洗面・バス・リビングをコンパクトかつ機能的に配置。
01.開放感のあるLDKは家族それぞれがゆったりとした時間を過ごせる広さ
02.キッチンから洗面・バスへは直結。コンパクトさを生かして実現した効率的な動線
03.一歩外に出るだけでお手軽アウトドア気分が味わえるテラスがあれば家族みんなでリラックスタイムに
Plan.2 すっきりと暮らす仕組みをIN
家族のふれあいを大切に暮らす
家族のコミュニケーションが自然に生まれるLDKには、パントリーやリビング収納も配置。
01.家族が触れ合いながら成長するLDK。今日の先生は誰?宿題をもってリビングに集合♪
02.日常の買い置きや災害用の備蓄品をストック。キッチンをスッキリさせるパントリー
03.家族のセルフ片付けにも期待できる、動線の要所に設けたリビング収納
Plan.3 家族の成長にあわせた家の使い方
ゆとりを生かしていつも快適に暮らす
毎日の生活も友人を招いた時も、ゆとりを感じる広々とした玄関ホールとLDK。
01.家族みんなで過ごしても広さにゆとりを感じる広々LDK
02.親子で「川の字」就寝もできるタタミコーナー
03.玄関手洗いで生活スペースをクリーンに
04.毎日の身支度に余裕ができる洗面スペース。家族の成長に合わせてどの部屋を使うか相談も楽しみ
もっと詳しく知りたい方はこちら




























